新想法,新格局 打造有温度的家居空间
2023-03-31 来源:华南家居网 作者:南诗
新想法,新格局 打造有温度的家居空间

案例介绍
城市:广州
区域:天河区
开发商:越秀城建
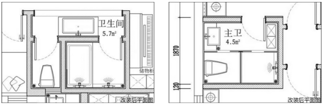
户型:4房2卫 大平层
改造卫生间面积:主卫6平米/次卫5平米
楼盘名称:名雅苑

改造诉求
项目是位于广州天河的一处二手房改造,业主要求在主卧内增加一个卫生间。因为家中新添成员,原先一个卫生间已无法满足使用需求,需要增加一个卫生间,因此整体上要将原来的户型拆除,重新设计。同时,空间要求利用最大化,所以选择了一个壁挂式坐便器。

设计师TALK
设计公司:广州海博装饰工程有限公司设计师:洪波
设计理念:以人为本,将业主的 想法理念融入设计,打造独一无二且具有温度的家居空间。
设计师采访Q&A
1、您如何理解设计?您一直坚持的设计理念和设计价值是什么?在设计作品中会如何融入您的理念?
以人为本。所有的设计都是围绕着人而展开的,不管是公共空间,商业空间还是住宅空间。我愿意把客户个人的偏爱和想法系统、综合地应用到室内设计作品里。 因为家庭各个成员之间对设计的理解也会存在差异,特别是风格的理解。我更希望我的客户可以和我共同去完成设计作品, 这样在呈现最终效果的时候,每一处都有客户自己的灵魂,这样他们会感觉到更有温度、更温暖。
2、可以简要叙述一下此次项目吗?业主对于卫浴空间的改造诉求是什么?
这一次我们的项目是在广州天河的一处二手房改造。对于二手房改造,其实我们面临的是10 年、 20 年前布局的不合理性和新客户对它的重新定义,这是我们改造的重点。我们需要全部拆掉然后重新分割。 这一次最大的难度是在卫生间,因为它原来只有一个单的公共卫生间。这次客户的要求是要增加一个主卧的卫生间。在选择卫浴产品的时候,我们会更注重卫浴产品的性能,包括质量、排水等各方面。 所以这一次我们卫生间选的都是悬挂式马桶,在狭小的空间里面,它会更显得更加的干净。同时我们也更注重它的质量,因为这种户型如果后续有问题,改造起来或者维修起来非常的麻烦。
3、您选购家居建材产品的标准是什么?此次为什么采用TOTO产品用于卫浴空间改造?
我们选择卫浴产品是在客户的预算范围内去做综合的选择和评定。首先品牌和质量是我们最关注的核心点。特别是二手房改造,它的结构可能会跟原来的建筑结构完全不一样。当我们做了其他的改造以后,对于卫浴产品的要求会更大。 这一次我们选择TOTO 的主要原因是信任。我们对TOTO的质量绝对放心,因为在过往的设计经验里面,它的售后是最少的。所以在综合考虑以后,我们选择用了 TOTO 的全系列产品来做我们这次项目的卫浴产品。
4、您如何评价TOTO产品的?
TOTO 是一个百年品牌,在设计师的理解里,它一直都是我们首选的卫浴产品。因为它的质量、款式各方面都能够满足我们日常的设计需要。尽管这些年有很多进口品牌走入进中国,但是大家的理解和接受程度还尚未完全。 所以基于品牌口碑,信任度和产品特性我们和客户达成一致,选择了TOTO。
5、你自己是如何评价(看待)这个项目中卫浴空间的设计和改造结果?
对于这次卫浴空间的改造,我们总体还是非常满意的。呈现出来的效果非常理想,客户也是非常满意的。
6、您认为未来卫浴空间的设计趋势是什么?
未来卫浴空间的设计板块经历智能化是一个必然的阶段。不管是智能灯光、智能空调、智能家居等等泛家居类的都变得智能化,它已经同我们的生活息息相关了。 同时,也会变得越来越个性化,无论是应用功能还是设计款式,我觉得都会在目前产品的基础上有很大的提升。

【改装使用TOTO产品】

TOTO 卫洗丽 ®智能组合坐便器
CW822EB+TCF4901ECSR
挂壁式设计,节约室内空间。隐藏的进水管设计,整体更加美观、简洁。智能洁净系统,让每一天都清洁、舒适、安心。便器内壁喷雾防污技术,污物清洗更轻松。

TOTO 卫洗丽 ®智能组合坐便盖
CW887EBT305+TCF7912ECS
外形美观的坐便器与卫洗丽®贴心组合在一起,外观简洁。智能洁净系统,让每一天都清洁、舒适、安心。便器内壁喷雾防污技术,污物清洗更轻松。

TOTO 桌上式洗面器

TOTO GS系列洗面器水嘴

TOTO顶置式花洒

TOTO 入墙手持花洒

TOTO 三干王浴室取暖干燥机

扫码登录TOTO【改造卫浴空间】专区
了解TOTO产品具体信息,以及更多精彩案例
[本文仅传递信息,不代表本站观点]     相关标签:
资讯风云榜
-
大角鹿联手三协建材 以优质优价岩板赋能全球市场
-
库斯家居双喜临门:新科技产业园落成盛典与群星演唱会共绘...
-
斯帝罗兰家居|广州家博会惊艳启幕,原创新品大放异彩!
-
慧聚同心·共启新程 | 2026慧宁门窗全国经销商财富峰会圆满举...
-
CIFF广州 | 第57届中国家博会(广州)盛大开幕:以“链新”为...
-
开年首展!2026福建建博会今日在晋江盛大启幕!
-
聚光万象!第55届名家具展首日盛况直击
-
海燕瓷砖正式签约进驻中国陶瓷卫浴总部—开启品牌发展新征...
-
质感中国行·昊晟新智造|昊晟集团2026媒体交流会圆满举行
-
战无疆 向新赢|新豪轩门窗2026全国经销商年度峰会盛大召开
-
伊盾门窗第十六届经销商战略营销峰会即将恢弘启幕!
-
第49届国际龙家具展览会与第39届亚洲 国际家居产业博览会媒...
-
“链新”战略引领行业变革 第57届中国家博会(广州)双展期...
-
质感中国行,昊晟新智造 | 昊晟集团清远生产基地2026新春点火...
-
百年广陶 · 共创生态——广陶·别墅外墙砖生态共创大会暨20...
-
破旧局 · 立新篇 · 同心共增长 | 意博门窗2026年经销商财富峰...
-
新春醒狮旺场,品质承诺护航 —广州罗浮宫家居大年初八盛大...
-
九木堂装饰上高首席设计师黄宗里:荣获2025年度设计金象奖
-
三强联袂,共筑未来 | 亚洲国际与行设传媒、睿合思行达成战...
-
前方有路 前程崭新 | 2026旭日集团战略沟通会暨媒体新春茶话...
-
鹰牌集团与大板智联协同发力岩板赛道|鹰牌岩板鹰创园展厅...
-
材料赋能设计 共创非凡新篇——新明珠科筑2026年度40席设计联...
-
高端潮起 乘哲而上丨欧哲门窗2026年品牌战略峰会圆满落幕
-
「KEEP GOING 崭新 · 逐浪 」丨𝟐𝟎𝟐𝟔 粤长盈年会盛典圆满...










