东井设计|闹市中的一抹宁静-莎邦贝茶餐厅
2019-08-16 来源:华南家居网 作者:安妮
东井设计|闹市中的一抹宁静-莎邦贝茶餐厅
灰色的怀旧走廊
静谧的蓝色
耀眼的香槟色
像一位充满故事的神秘女郎
这就是莎邦贝Shabono
雅得明朗
雅得有生命力
透过那扇带着弧度的窗
露出一抹墨绿
这正是设计师独特的色彩美感的体现
墨绿是很独特的协调者
将大地和天空连接在一起
这份墨绿
使得整个空间像一个质朴的贵族
带着来自园林中的清雅和芬芳
也像一个狡黠的精灵女王
带着镇静而又充满智慧的气息
从容地生动着
朦胧的灯光
人影儿摇幌
在这陶醉的晚上
深深的情意使我难忘
唯美的色彩展示着它们各自性格,躯干孱弱却拥有彩虹般绚烂的灵魂,紧扣主题的艺术装置传达出一种生活态度:只要内心强大都可以恣意绽放!
拱形是整个空间
活跃的表达符号
它代表了一种深层的沟通
在装饰方面,设计师在空间中装饰了多幅挂画,在满足美学要求的前提下,丰富了整个空间的氛围感与表现力,使整个空间变得更为丰富与立体,多面的展示整个空间带来的美学感受与情感叙述。
沿着过道继续往前走,设计师在这里打造了一个别具一格的卫生间,鲜艳的红色,同时与外面的白色和黑色形成了强烈的色彩碰撞,充满了激情和活力,激发无限的想象力与视觉感受。
红色的墙体装饰,使整个空间变得更为热情和活力,为整个空间添加了更多的想象力,同时使不同的空间表示形成统一的整体。具有强烈的舞台感。像火焰般燃起了整片空间。
莎邦贝茶餐厅
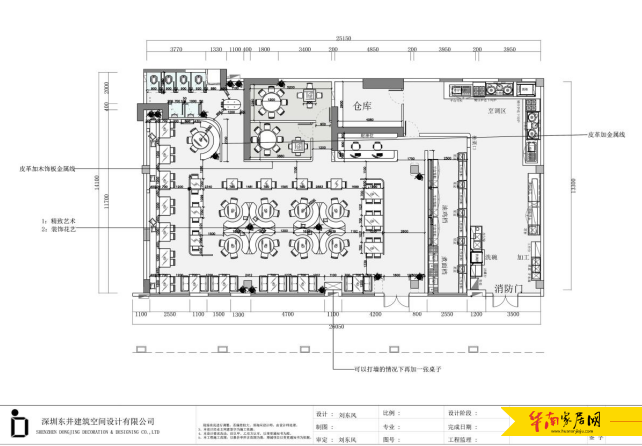
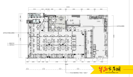
图纸呈现
原始结构图
平面布置图
项目名称| 莎邦贝茶餐厅
项目地址| 深圳
项目面积| 400㎡
完成时间| 2019年7月
室内设计| 深圳东井建筑空间设计有限公司
主创设计| 刘东风
设计团队| 黄镇朝 曾志文 杨兆北 杨思宁 袁梦瑞
软装| 唯佳设计
摄影| Vispower
撰文| 行者
创始人介绍>>

刘东风
毕业于中国美院工艺美术系
深圳东井建筑设计有限公司创始人
深圳宾利卡萨家具有限公司设计总监
深圳席麟家具设计有限公司设计总监
意大利米兰理工学院研究生
深圳陈设艺术协会副会长
2014全国青年设计大赛金奖
2015亚太设计空间陈设艺术奖
2016中国十大杰出设计师
2017法国双面狮金奖
2017亚太酒店空间设计优秀奖
2018意大利IFI最佳商业空间设计奖
2018全国十大优秀设计师
[本文仅传递信息,不代表本站观点]     相关标签:莎邦贝茶餐厅
资讯风云榜
-
共筑文旅人居新生态 威法与两大协会携手赋能行业高质量发展...
-
共筑文旅人居新生态 威法与两大协会携手赋能行业高质量发展...
-
焕新睡眠节,曼丽菲斯意大利生活文化探索之旅VIP沙龙圆满举...
-
伊洛德门窗3.20品牌日圆满举行:伊览全景·战略跃升,开启高...
-
大角鹿联手三协建材 以优质优价岩板赋能全球市场
-
库斯家居双喜临门:新科技产业园落成盛典与群星演唱会共绘...
-
斯帝罗兰家居|广州家博会惊艳启幕,原创新品大放异彩!
-
慧聚同心·共启新程 | 2026慧宁门窗全国经销商财富峰会圆满举...
-
CIFF广州 | 第57届中国家博会(广州)盛大开幕:以“链新”为...
-
开年首展!2026福建建博会今日在晋江盛大启幕!
-
聚光万象!第55届名家具展首日盛况直击
-
海燕瓷砖正式签约进驻中国陶瓷卫浴总部—开启品牌发展新征...
-
质感中国行·昊晟新智造|昊晟集团2026媒体交流会圆满举行
-
战无疆 向新赢|新豪轩门窗2026全国经销商年度峰会盛大召开
-
伊盾门窗第十六届经销商战略营销峰会即将恢弘启幕!
-
第49届国际龙家具展览会与第39届亚洲 国际家居产业博览会媒...
-
“链新”战略引领行业变革 第57届中国家博会(广州)双展期...
-
质感中国行,昊晟新智造 | 昊晟集团清远生产基地2026新春点火...
-
破旧局 · 立新篇 · 同心共增长 | 意博门窗2026年经销商财富峰...
-
新春醒狮旺场,品质承诺护航 —广州罗浮宫家居大年初八盛大...
-
九木堂装饰上高首席设计师黄宗里:荣获2025年度设计金象奖
-
九木堂装饰潮州首席设计师郑萍:荣获2025年度设计金象奖
-
三强联袂,共筑未来 | 亚洲国际与行设传媒、睿合思行达成战...
-
前方有路 前程崭新 | 2026旭日集团战略沟通会暨媒体新春茶话...










